
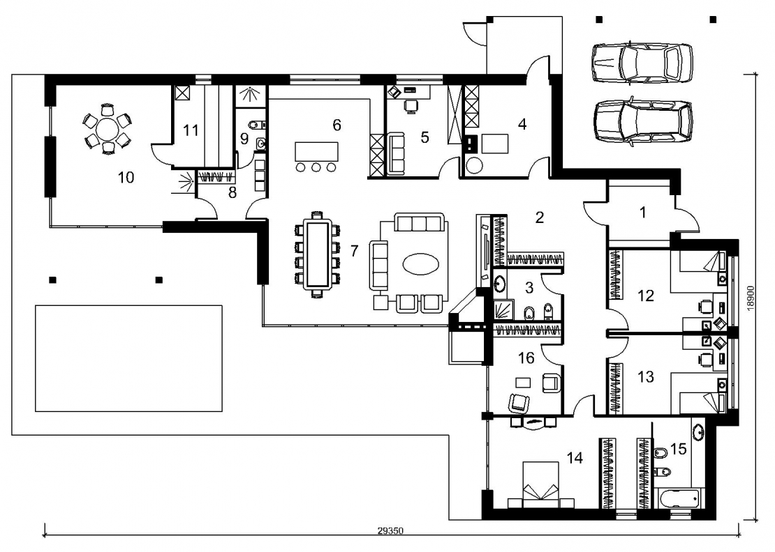
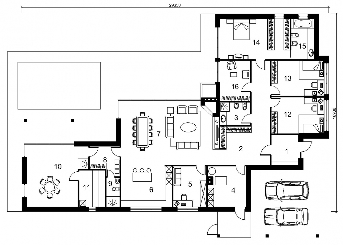
| Общая площадь | 274.55 m2 | ||
| Жилая площадь | 158,8 m2 | ||
| Длина | 29,35 m | ||
| Ширина | 18,9 m | ||
| Навес | 1auto/2auto m2 | ||
| Терраса | 140 m2 | ||
| Площадь застройки | 400 m2 | ||
| 1303 EUR |
Заказать двухэтажный Проект дома „Orinta” площадью 274.55 квадратных метра с террасой вы можете в нашей компании по самым доступным ценам. Наши специалисты предложат современные решения и альтернативные подходы наработанные большим опытом проектирования и строительства загородных домов, коттеджей, бань. Вы будете довольны!
Если Вы хотите заказать какую либо услугу отправьте сообщение нам и наши специалисты свяжутся с Вами в течение суток.
Также Вы можете воспользоваться данной формой для получения любой интересующей Вас информации
Tel: +7(958) 535-40-16
Email: market@e-lighters.ru
Рабочее время: 9:00 - 18:00