
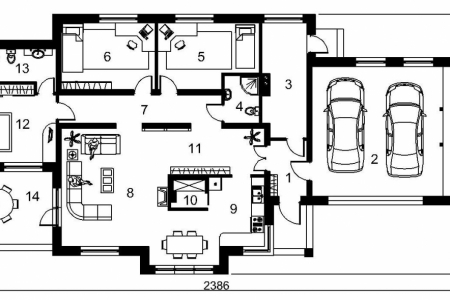
| Общая площадь | 185 m2 | ||
| Гараж | 42.78 m2 | ||
| Жилая площадь | 84,07 m2 | ||
| Длина | 12.04 m | ||
| Ширина | 23,86 m | ||
| Навес | Galima vietoje gara Заказать двухэтажный Проект дома „Raimondas” площадью 185 квадратных метра с гаражом с террасой вы можете в нашей компании по самым доступным ценам. Наши специалисты предложат современные решения и альтернативные подходы наработанные большим опытом проектирования и строительства загородных домов, коттеджей, бань. Вы будете довольны! Задать вопросОтзывы клиентовСвязаться с намиЕсли Вы хотите заказать какую либо услугу отправьте сообщение нам и наши специалисты свяжутся с Вами в течение суток. Также Вы можете воспользоваться данной формой для получения любой интересующей Вас информации Tel: +7(958) 535-40-16 Email: market@e-lighters.ru Рабочее время: 9:00 - 18:00 |