
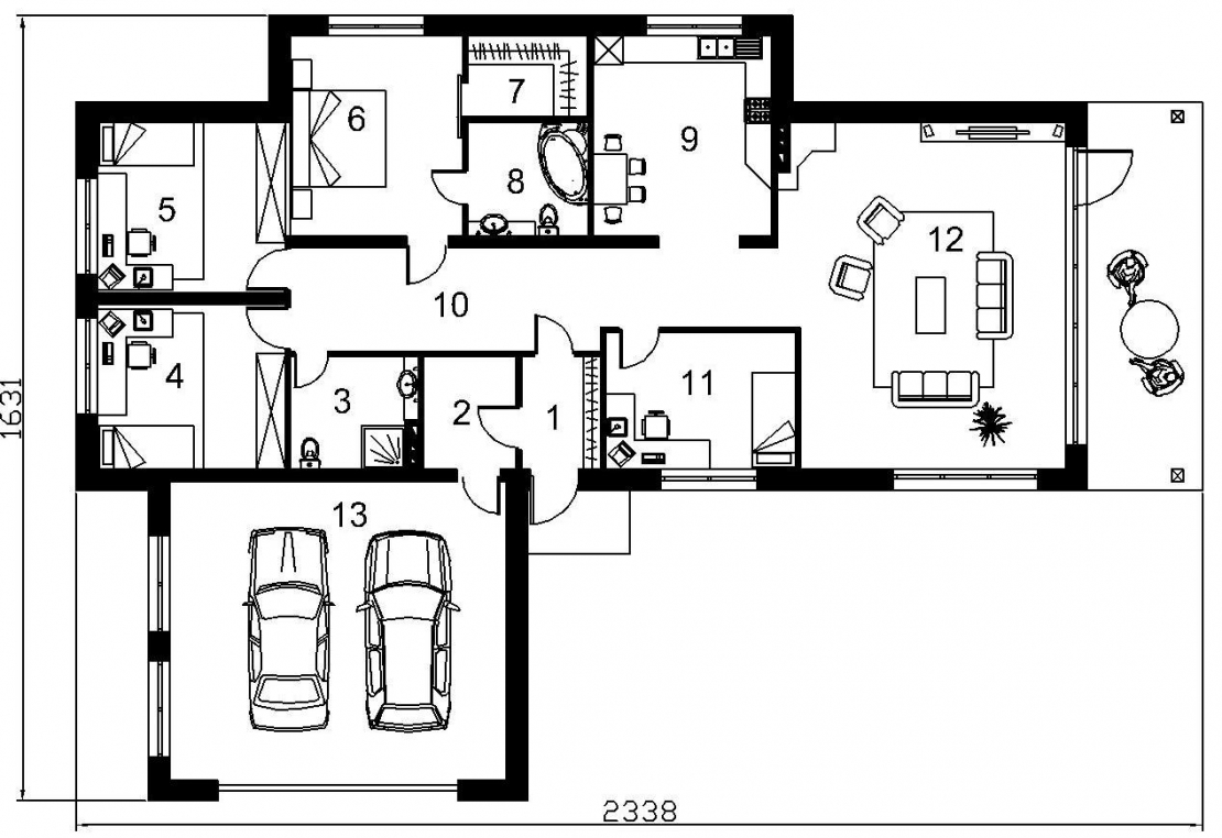
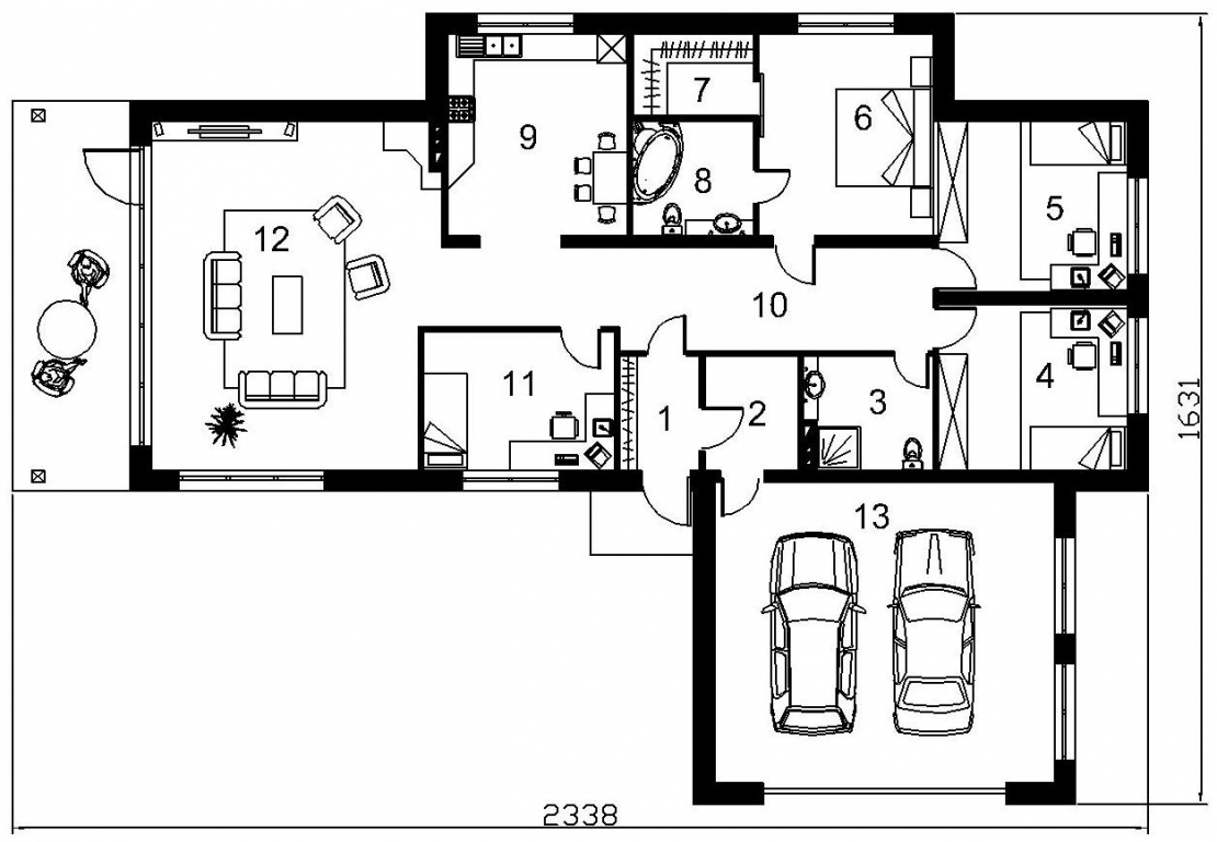
| Общая площадь | 197 m2 | ||
| Гараж | 43.4 m2 | ||
| Жилая площадь | 109,17 m2 | ||
| Длина | 16,31 m | ||
| Ширина | 23,38 m | ||
| Навес | Galima vietoje gara Заказать двухэтажный Проект дома „Titas 2” площадью 197 квадратных метра с гаражом с террасой вы можете в нашей компании по самым доступным ценам. Наши специалисты предложат современные решения и альтернативные подходы наработанные большим опытом проектирования и строительства загородных домов, коттеджей, бань. Вы будете довольны! Задать вопросОтзывы клиентовСвязаться с намиЕсли Вы хотите заказать какую либо услугу отправьте сообщение нам и наши специалисты свяжутся с Вами в течение суток. Также Вы можете воспользоваться данной формой для получения любой интересующей Вас информации Tel: +7(958) 535-40-16 Email: market@e-lighters.ru Рабочее время: 9:00 - 18:00 |