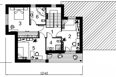
Проект дома „Tomas”

2 этажа, площадь: 134м2
Проект дома „Tomas”
Общая площадь 134 m2
Гараж Galima vietoje stogin

Заказать двухэтажный Проект дома „Tomas” площадью 134 квадратных метра с гаражом с террасой вы можете в нашей компании по самым доступным ценам. Наши специалисты предложат современные решения и альтернативные подходы наработанные большим опытом проектирования и строительства загородных домов, коттеджей, бань. Вы будете довольны!

Задать вопрос

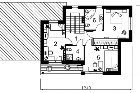
  •  Проект дома „Tomas” #1
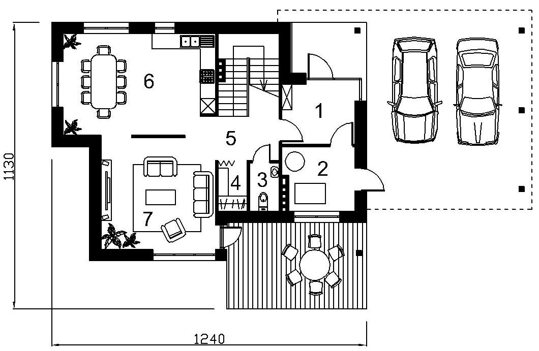
  •  Проект дома „Tomas” #2
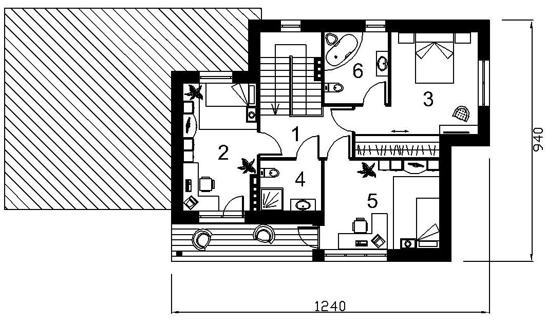
  •  Проект дома „Tomas” #3
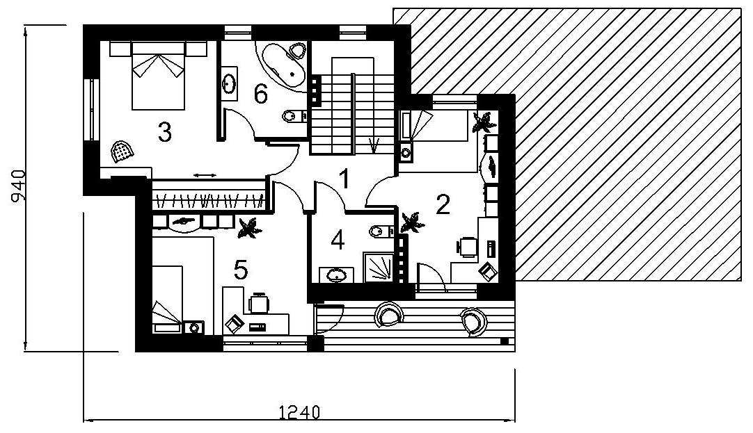
  •  Проект дома „Tomas” #4
  •  Проект дома „Tomas” #5
  •  Проект дома „Tomas” #6
  •  Проект дома „Tomas” #7
  •  Проект дома „Tomas” #8
  •  Проект дома „Tomas” #9

Отзывы клиентов

  • Еременко Алексей

    Нужно было сделать ограду для моего участка - скорость работы компании удивила! Превзошли все мои ожидания! Спасибо!

  • Елена антольевна, домохозяйка

    Сбылись мои мечты, теперь мы живем в собственном доме, на свежем воздухе! Спасибо Вам ребята!

    Мы давно с мужем планировали переехать из суетливого города. В строительстве домов ничего не понимали и обратились к специалистам из 25Строй. Здесь нам сделали все просто на "отлично"! Никаких зажержек, все вовремя и в сроки, как изначально было в плане.  Большое спасибо! 

  • Евгений

    Работают грамотно, просто здорово, что есть такие специалисты !

    В 25Строй мы обратились доделать наш коттедж, после двухлетних мучений с другими подрядчиками.  Уже отчаялись, что строительство никогда не закончится. Ребята из 25 Строй, подошли к делу грамотно, составили план работ, обсудили с нами все ньюансы и за пару месяцев доделали все в лучшем виде. Не ожидал, что так быстро получится. Спасибо большое! Удачи Вам!

  • Анатолий, предприниматель

    Только начинаю работать с компанией 25Строй но сразу видно что ребята профессионалы! Предложили проект под мой участок, подсказали что и где лучше расположить. Мне нравится.

Связаться с нами

Если Вы хотите заказать какую либо услугу отправьте сообщение нам и наши специалисты свяжутся с Вами в течение суток. 

Также Вы можете воспользоваться данной формой для получения любой интересующей Вас информации

Tel: +7(958) 535-40-16

Email: market@e-lighters.ru

Рабочее время: 9:00 - 18:00